Our Projects

The Residences

Availability

Available Soon

Description

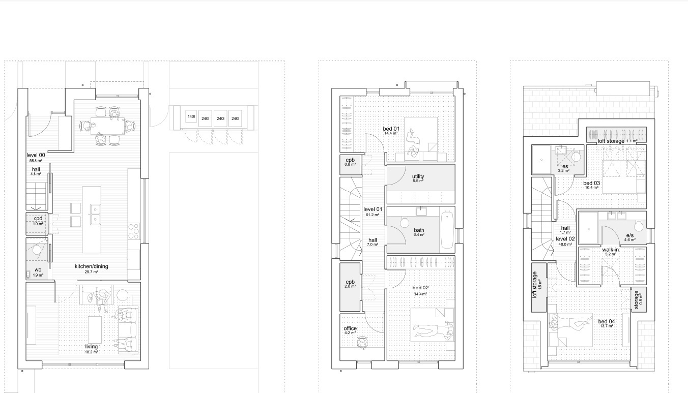
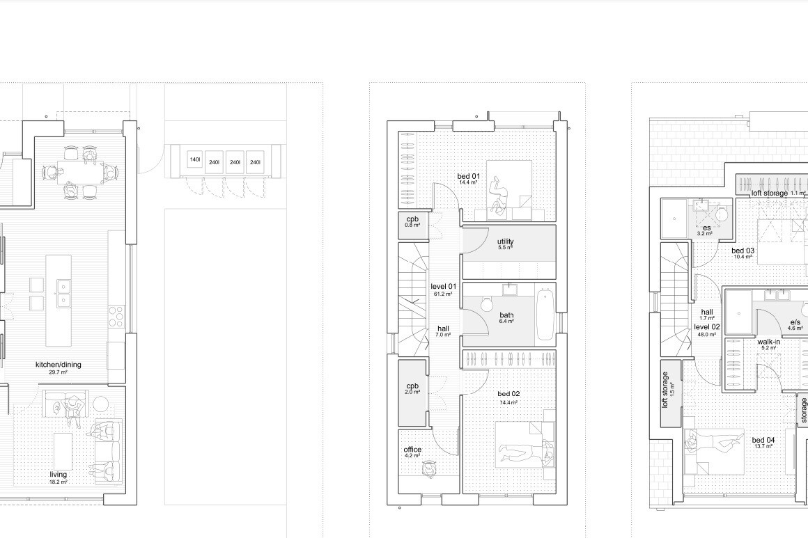
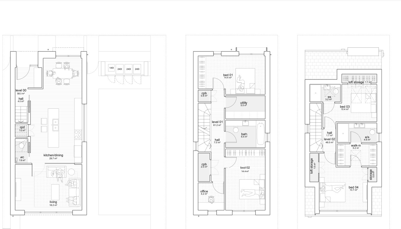
The Residences consist of six semi-detached 4 bedroom homes and one detached 4 bedroom home, with south-facing private gardens, terraces and secure off street parking. An exclusive collection of just seven freehold homes in the heart of Timperley, South Manchester. Generous light-drenched living spaces feature modern lines, abundant glass and luxury finishes.

Elegant vertical proportions and the developments signature bay windows create sun-soaked living spaces and offer exceptional views out. Subtle details create a reassuring sense of privacy. The design employs a minimal palette of buff brick in traditional bong, large format aluminium windows, aluminium clad dormer elements and a slate roof.

Register your interest now.

Key Feature 1

Siematic/German Kitchens

Key Feature 2

Private Estate of only 7 new Dwellings

Key Feature 3

Abundance of glass and light

Key Feature 4

Off Road parking for 2 cars

Video